APPART 100 m² EN DERNIER ETAGE AVEC GRANDE TERRASSE ET GARAGES EN EXCLUSIVITE
Prix
499 000 €
Ref 2524
Description de l'offre
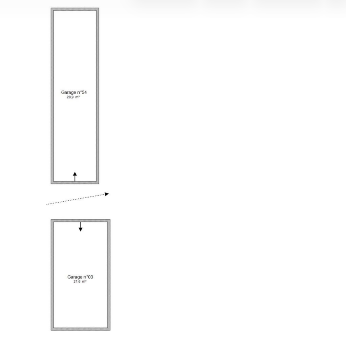
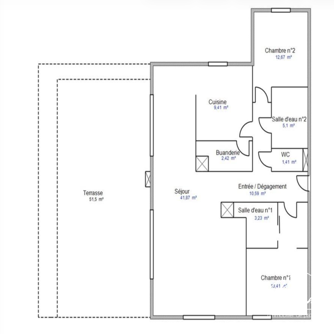
NIMES VEDELIN EN EXCLUSIVITE Dans un quartier recherché à proximité de tous commerces, du CHU et de Vacquerolles. Au coeur d’une copropriété récente de standing avec ascenseur dans le quartier recherché du petit védelin, nous vous proposons en dernier étage, cet appartement de 100m² LC offre un cadre de vie privilégié alliant modernité et confort absolu. Une aménagement optimisé et lumineux, ce bien vous offre un cadre de vie au calme et privilégié dans une secteur recherché. L’appartement se compose comme suit : - Un hall d’entrée accueillant à un généreux salon-séjour et une cuisine équipée indépendante. - Espace nuit : Deux chambres spacieuses, dont une avec salle d’eau attenante. Une seconde salle d’eau indépendante et des wc séparés. - Un cellier fonctionnel vient compléter l’espace intérieur. - Une grande terrasse : L’atout majeur de ce bien réside dans sa terrasse de 50m². Véritable jardin suspendu, cet espace extérieur d’exception permet de profiter pleinement du climat méditerranéen. Prestation de qualité : - Climatisation réversible et volets roulants électriques. - Résidence sécurisée aux normes récentes. - Un garage double plus un garage simple, offrant une capacité de stationnement sécurisé pour trois véhicules. Ce bien rare sur le secteur réunit tous les critères d’une résidence principale de standing. Ne laisser pas passer cette opportunité rare sur le marché. Copro 40 Appt / 99 lots, Procédures en cours : néant, Charges 1690€/an, Honoraires charge vendeur - Les informations sur les risques auxquels ce bien est exposé sont disponibles sur le site Géorisques : www.géorisques.gouv.fr
Description du bien
4
Pièces
100
m²
2
Chambres
| Label | Value |
|---|---|
| Code postal | 30900 |
| Surface habitable (m²) | 100 m² |
| Surface loi Carrez (m²) | 100,11 m² |
| Nombre de chambre(s) | 2 |
| Nombre de pièces | 4 |
| Etage | 3 |
| Ascenseur | OUI |
| Label | Value |
|---|---|
| Nb de salle d'eau | 2 |
| Cuisine | SEPAREE |
| Type de cuisine | EQUIPEE |
| Mode de chauffage | Electrique, Electrique |
| Type de chauffage | Air pulsé, Panneaux rayonnant |
| Format de chauffage | Individuel, Individuel |
| Interphone | OUI |
| Visiophone | OUI |
| Balcon | OUI |
| Terrasse | OUI |
| Nombre de garage | 2 |
| Exposition | SUD-OUEST |
| Année de construction | 2022 |
| Quartier | NIMES |
| Label | Value |
|---|---|
| Copropriété | OUI |
| nombre de lots | 99 |
| Quote Part annuelle des charges | 1 690 € |
| statut du syndic | pas de procédure en cours |
| Label | Value |
|---|---|
| Prix de vente | 499 000 € |
| Les honoraires d'agence seront intégralement à la charge du vendeur | |
| Charges | 160 € |
| Taxe foncière annuelle | 1 084 € |
| Label | Value |
|---|
Contacter l'agence
* : Les informations recueillies sur ce formulaire sont enregistrées dans un fichier
Elles sont conservées jusqu'à demande de suppression et sont destinées au groupement Nimmo.
Conformément à la loi « informatique et libertés », vous pouvez exercer votre droit d'accès aux données vous concernant et les faire rectifier en contactant le groupement Nimmo.
Nous vous informons de l’existence de la liste d'opposition au démarchage téléphonique « Bloctel », sur laquelle vous pouvez vous inscrire ici : https://conso.bloctel.fr/
Ce site est protégé par reCAPTCHA, les Politiques de Confidentialité et les Conditions d'Utilisation de Google s'appliquent.
