EXCVLUSIVITE NIMES CAPOUCHINE APPARTEMENT T2 TERRASSE GARAGE
Prix
159 000 €
Ref 4950
Description de l'offre
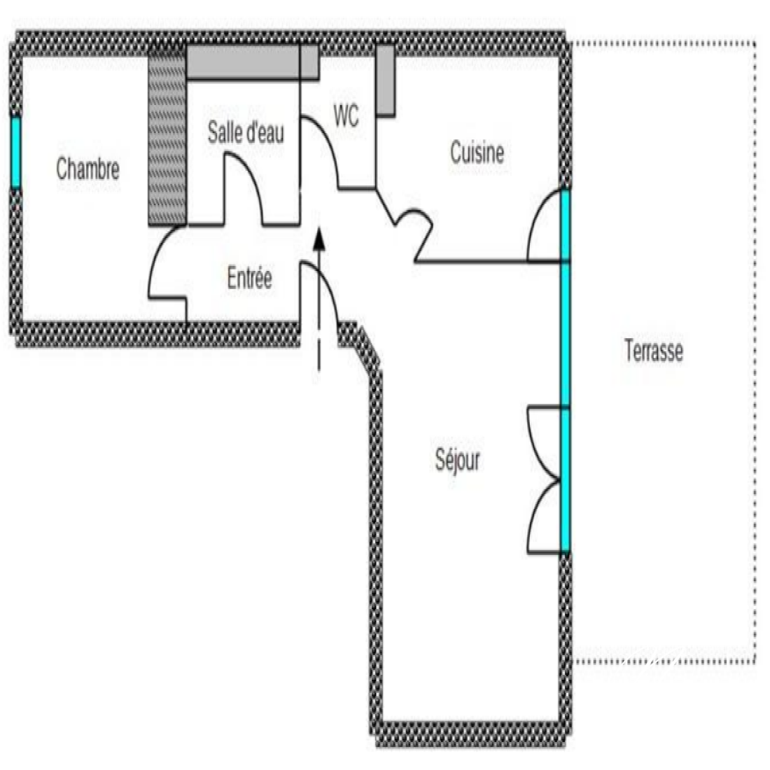
EXCLUSIVITE NIMES CAPOUCHINÉ Dans une résidence sécurisée entourée d’un agréable parc arboré, venez découvrir ce lumineux appartement T2 de 51,80m² LC situé en rez-de-chaussée. Vous pourrez profiter d’une spacieuse terrasse de 32m² donnant plein Sud. L’appartement se compose d’une entrée, pièce à vivre, cuisine séparée, une chambre avec rangement. La salle d’eau a été récemment rénovée et les wc sont indépendants. Un garage d’environ 15m² complète ce bien. Bien soumis au statut juridique de la copropriété. Nombre de lots : 93 dont 40 appartements. Charges annuelles de copropriété (montant moyen annuel quote-part du budget prévisionnel vendeur): 1286€. Procédure en cours : néant. Honoraires charge vendeur. Les informations sur les risques auxquels ce bien est exposé sont disponibles sur le site Géorisques : www.georisques.gouv.fr.
Description du bien
2
Pièces
51.8
m²
1
Chambre
| Label | Value |
|---|---|
| Code postal | 30900 |
| Surface habitable (m²) | 51,80 m² |
| Surface loi Carrez (m²) | 51,80 m² |
| Nombre de chambre(s) | 1 |
| Nombre de pièces | 2 |
| Nombre de niveaux | 1 |
| Vue | Jardin |
| Label | Value |
|---|---|
| Nb de salle d'eau | 1 |
| Cuisine | SEPAREE |
| Type de cuisine | SEMI-EQUIPEE |
| Mode de chauffage | Electrique |
| Type de chauffage | Convecteur |
| Format de chauffage | Individuel |
| Terrasse | OUI |
| Nombre de garage | 1 |
| Exposition | SUD-EST |
| Année de construction | 1990 |
| Label | Value |
|---|---|
| Copropriété | OUI |
| nombre de lots | 93 |
| Quote Part annuelle des charges | 1 286 € |
| statut du syndic | pas de procédure en cours |
| Label | Value |
|---|---|
| Prix de vente | 159 000 € |
| Les honoraires d'agence seront intégralement à la charge du vendeur | |
| Charges | 107 € |
| Taxe foncière annuelle | 1 224 € |
| Label | Value |
|---|
Contacter l'agence
* : Les informations recueillies sur ce formulaire sont enregistrées dans un fichier
Elles sont conservées jusqu'à demande de suppression et sont destinées au groupement Nimmo.
Conformément à la loi « informatique et libertés », vous pouvez exercer votre droit d'accès aux données vous concernant et les faire rectifier en contactant le groupement Nimmo.
Nous vous informons de l’existence de la liste d'opposition au démarchage téléphonique « Bloctel », sur laquelle vous pouvez vous inscrire ici : https://conso.bloctel.fr/
Ce site est protégé par reCAPTCHA, les Politiques de Confidentialité et les Conditions d'Utilisation de Google s'appliquent.
