NIMES PLANETTE VASTE VILLA AVEC TERRAIN ET PISCINE
Prix
490 000 €
Ref 2512
Description de l'offre
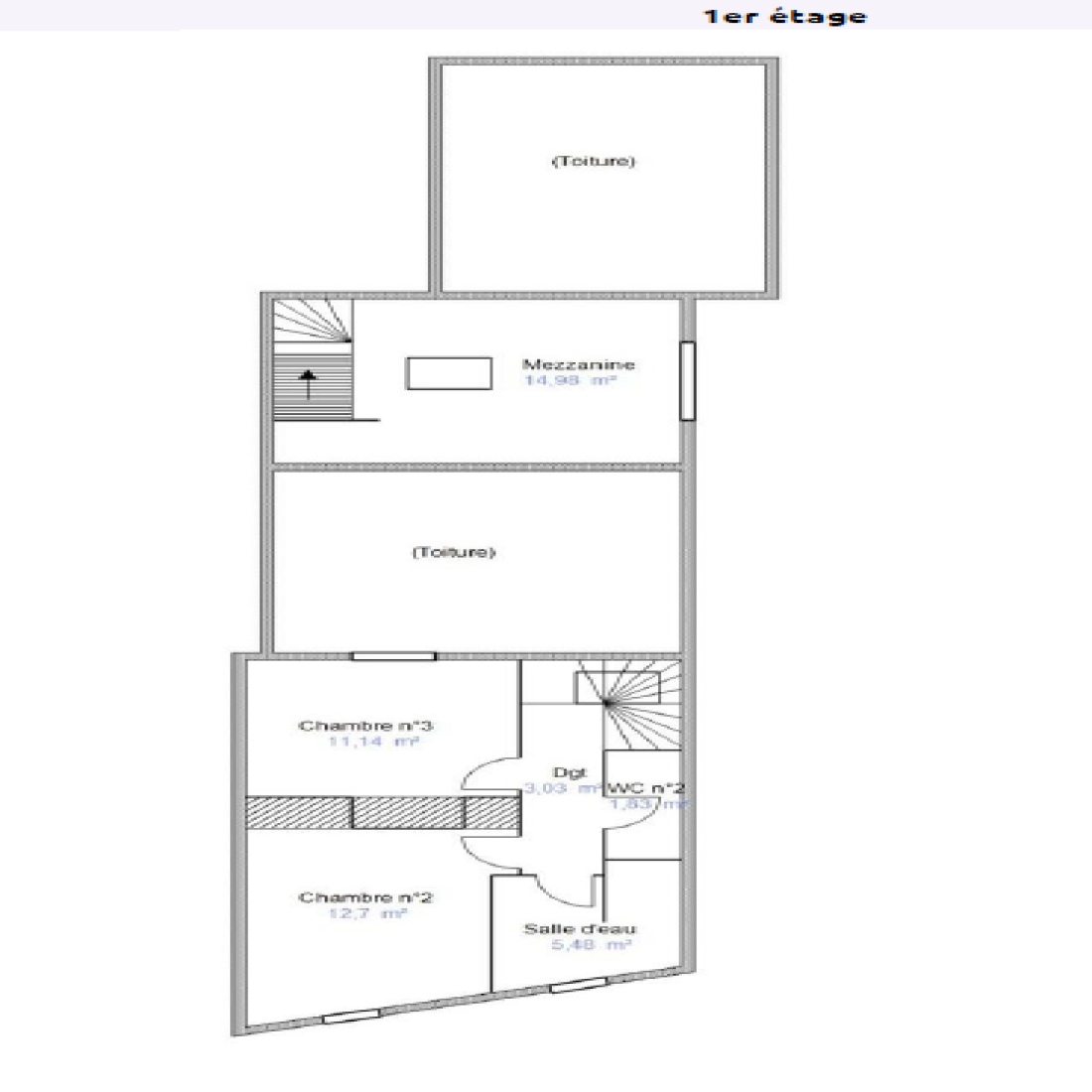
NIMES PLANETTE Située dans le quartier très prisé de La Planette à Nîmes, venez découvrir cette belle villa d'une surface habitable de 137 m² qui séduira par son cadre verdoyant, son environnement résidentiel recherché, située à proximité des écoles, des transports et des commodités, à quelques minutes du centre-ville. Édifiée sur un terrain arboré de 1 080 m², elle offre de beaux espaces extérieurs comprenant une piscine, avec terrasse, pool house et un abri voitures. Elle est composée, au rez-de-chaussée, d'une grande cuisine avec coin repas qui s’ouvre d’un côté sur un séjour lumineux, et de l’autre sur une pièce polyvalente pouvant servir de salle à manger ou de bureau, une buanderie, un WC indépendant et une suite parentale avec salle d’eau et placard, le tout ouvert sur le jardin. Idéale pour une vie de plain-pied. À l’étage, l'espace nuit comprend deux chambres, une salle d’eau, WC et une troisième chambre dispose de sa propre salle de bains. Cette maison séduira les familles en quête d’un cadre paisible et lumineux, offrant le calme de la campagne à deux pas du centre-ville de Nîmes, dans un environnement naturel privilégié. Honoraires charge vendeur - Les informations sur les risques auxquels ce bien est exposé sont disponibles sur le site Géorisques : www.géorisques.gouv.fr
Description du bien
5
Pièces
140
m²
4
Chambres
| Label | Value |
|---|---|
| Code postal | 30000 |
| Surface habitable (m²) | 140 m² |
| surface terrain | 1 081 m² |
| Nombre de chambre(s) | 4 |
| Nombre de pièces | 5 |
| Nombre de niveaux | 2 |
| Vue | Jardin |
| Label | Value |
|---|---|
| Nb de salle de bains | 1 |
| Nb de salle d'eau | 2 |
| Cuisine | SEPAREE |
| Type de cuisine | EQUIPEE |
| Mode de chauffage | Gaz de ville |
| Type de chauffage | TRAD_TYPE_CHAUFF_CHAUDIERE |
| Format de chauffage | Central |
| Terrasse | OUI |
| Exposition | SUD-EST |
| Année de construction | 2004 |
| Quartier | NIMES |
| Terrain arboré | OUI |
| Terrain divisible | NON |
| Label | Value |
|---|---|
| Copropriété | NON |
| Label | Value |
|---|---|
| Prix de vente | 490 000 € |
| Les honoraires d'agence seront intégralement à la charge du vendeur | |
| Taxe foncière annuelle | 1 281 € |
| Label | Value |
|---|
Contacter l'agence
* : Les informations recueillies sur ce formulaire sont enregistrées dans un fichier
Elles sont conservées jusqu'à demande de suppression et sont destinées au groupement Nimmo.
Conformément à la loi « informatique et libertés », vous pouvez exercer votre droit d'accès aux données vous concernant et les faire rectifier en contactant le groupement Nimmo.
Nous vous informons de l’existence de la liste d'opposition au démarchage téléphonique « Bloctel », sur laquelle vous pouvez vous inscrire ici : https://conso.bloctel.fr/
Ce site est protégé par reCAPTCHA, les Politiques de Confidentialité et les Conditions d'Utilisation de Google s'appliquent.
